Close Menu Close Menu
Book A Valuation

Thank you for your enquiry

Your message has been emailed to us, we will get back to you as soon as possible.

We work along with a firm of Chartered Valuations Surveyors who specialise in providing valuations and property advice for all major banks and building societies, solicitors, accountants, developers and builders, and private individuals.

The scope of Valuation Provided include:

  • Mortgage & Secured Lending
  • Commercial Lending
  • Disposal and Letting Advice
  • Taxation
  • Matrimonial / Ancillary Relief
  • Probate

For further advice, or to discuss individual requirements, phone, email or write to us.

All enquiries are treated with strict confidence

Close Menu Close Menu
Back To Search

Key Information

Address 50 Stevensons Avenue, Moygashel, Dungannon
Price Offers over £99,950
Style Semi-detached House
Bedrooms 2
Receptions 1
Bathrooms 1
Heating Oil
Status For sale
Selling Agent Jeremy Baird
Contact Jeremy Baird
Request A Viewing

Please check you have entered all details correctly:

Additional Information

 50 Stevensons Avenue

Additional Information

Baird Real Estate are delighted to present this well-maintained two-bedroom semi-detached home located on an excellent end site within the popular village of Moygashel. This property offers generous outdoor space, a detached garage, and great potential for both first-time buyers and investors alike:

Internally, the accommodation comprises a bright living room, a separate kitchen/diner, and a lean-to area providing useful cover over the rear yard space. On the first floor, there are two well-proportioned bedrooms and a family bathroom.

Externally, the property truly impresses with its superb garden space—ideal for entertaining, family use, or further enhancement—alongside the benefit of the detached garage and off-street parking.

Conveniently situated close to local amenities, schools, and transport links, this attractive home represents a fantastic opportunity to step onto the property ladder or add a solid asset to an investment portfolio.

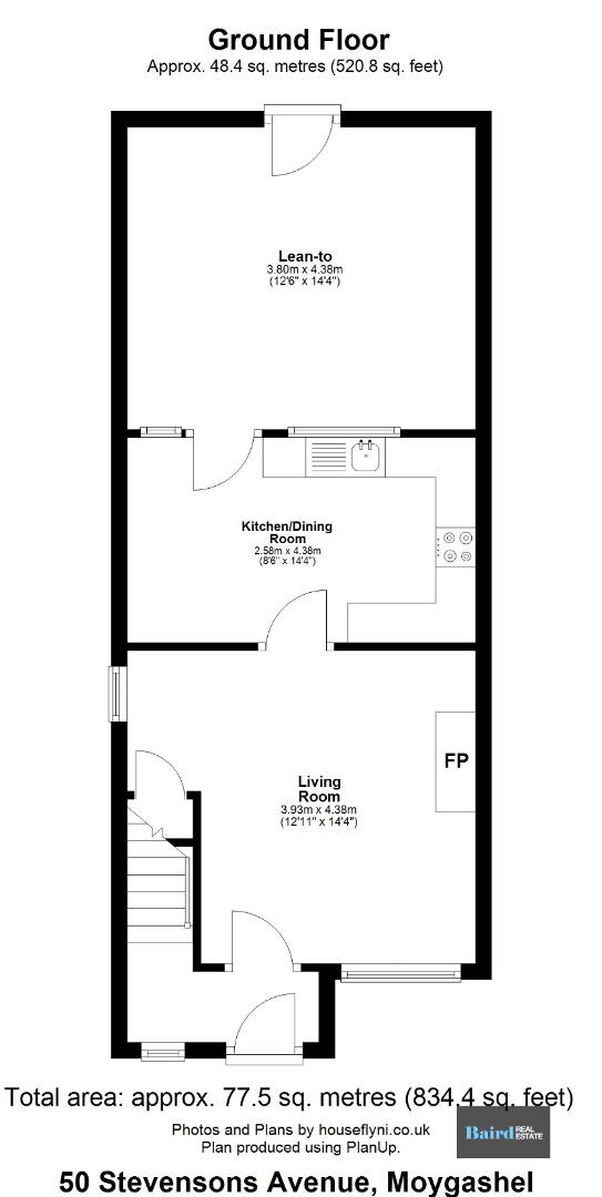
Accommodation Comprises:

Entrance Hallway: 2.40m x 1.22m

Carpet flooring, double panel radiator and power points.

Living room: 3.93m x 4.37m

Laminate wooden flooring, open fire with granite hearth, mahagony surround and electric inset, power points, double panel radiator, front and side aspect windows and understairs storage.

Kitchen: 2.65m x 4.38m

Lino flooring, range of high and low level cupboards, hotpoint electric cooker, stainless steel sink and drainer,  breakfast bar, single panel radiator and wooden back door.

Front bedroom: 3.43 x 3.95 

Carpet flooring, built in storage with water tank, radiator and double socket.

Bedroom 2: 2.72 x 2.58

Carpet flooring and single panel radiator.

Bathroom: 1.53 x 1.56 

Laminate flooring, tiled walls above bath, bath shower unit, single panel radiator, rear facing window and floating wash hand basin.

Lean to: 4.38m x 3.81m

Tank and burner, water tap and outside lighting.

Exterior

Concrete pathway leading to front door, boundary by fencing, garden laid in lawn, stone flowerbeds, side lawn and pathway leading to rear of property.

Garage 3.760m:

 

Read More