Baird Real Estate

Potential Development Site, Adjacent To 32 Derryvale Road, Coalisland, Dungannon BT71 4PB

Building Site (with no PP) For Sale

£125,000

Print additional images & map (disable to save ink)

Photo 1 of Potential Development Site, Adjacent To 32 Derryvale Road, Coalisland, Dungannon

Telephone:

028 8788 0080

View Online:

www.bairdrealestate.co.uk/1034050

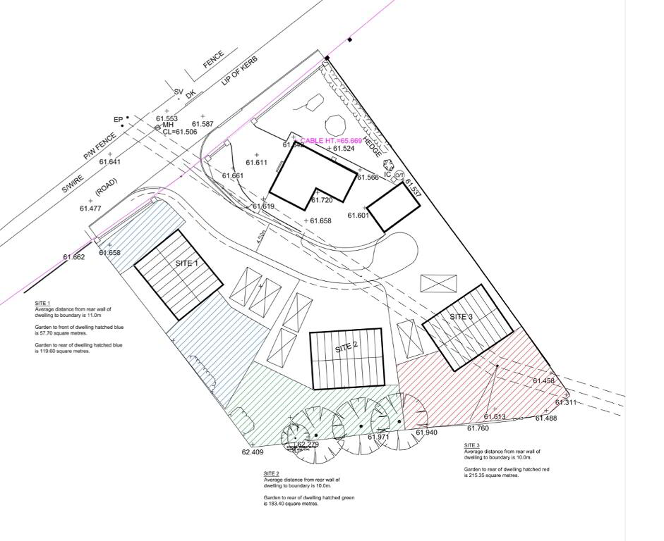
Development Site – Lands Adjacent to 32 Derryvale Road, Coalisland Baird Real Estate are delighted to offer to the market this excellent potential development site located on the popular Derryvale Road in Coalisland. Extending to approximately 0.3 acres, the site has a planning application submitted and currently at the latter stages of approval for the erection of three detached dwellings.

Key Information

Address Potential Development Site, Adjacent To 32 Derryvale Road, Coalisland, Dungannon
Price Last listed at Offers over £125,000
Land type Building Site (with no PP)
Size 0.3 acres
Planning No Planning Permission
Status Sale Agreed

Additional Information

Development Site – Lands Adjacent to 32 Derryvale Road, Coalisland Baird Real Estate are delighted to offer to the market this excellent potential development site located on the popular Derryvale Road in Coalisland. Extending to approximately 0.3 acres, the site has a planning application submitted and currently at the latter stages of approval for the erection of three detached dwellings.

The site occupies a convenient and highly accessible location close to Coalisland town centre, with easy links to local schools, shops and transport networks. This represents a superb opportunity for builders, developers or those seeking a small-scale residential project with strong demand in the area for quality homes.

Key Features:

  • Development site extending to circa 0.3 acres
  • Planning application submitted (later stages) for 3 detached dwellings
  • Situated adjacent to 32 Derryvale Road, Coalisland
  • Highly accessible location close to local amenities and road links
  • Excellent opportunity for builders and developers

This is a rare chance to acquire a ready-to-go residential site with strong future potential in a sought-after Mid Ulster location.

Planning Reference Number:  LA09/2023/0849/F

  • Baird Real Estate

    Baird Real Estate

    028 8788 0080

Photo Gallery

Photo 1 of Potential Development Site, Adjacent To 32 Derryvale Road, Coalisland, Dungannon Photo 2 of Potential Development Site, Adjacent To 32 Derryvale Road, Coalisland, Dungannon Photo 3 of Potential Development Site, Adjacent To 32 Derryvale Road, Coalisland, Dungannon Photo 4 of Potential Development Site, Adjacent To 32 Derryvale Road, Coalisland, Dungannon Photo 5 of Potential Development Site, Adjacent To 32 Derryvale Road, Coalisland, Dungannon Photo 6 of Potential Development Site, Adjacent To 32 Derryvale Road, Coalisland, Dungannon Photo 7 of Potential Development Site, Adjacent To 32 Derryvale Road, Coalisland, Dungannon Photo 8 of Potential Development Site, Adjacent To 32 Derryvale Road, Coalisland, Dungannon Photo 9 of Potential Development Site, Adjacent To 32 Derryvale Road, Coalisland, Dungannon Photo 10 of Potential Development Site, Adjacent To 32 Derryvale Road, Coalisland, Dungannon Photo 11 of Potential Development Site, Adjacent To 32 Derryvale Road, Coalisland, Dungannon Photo 12 of Potential Development Site, Adjacent To 32 Derryvale Road, Coalisland, Dungannon

Visit www.bairdrealestate.co.uk for further details.