Baird Real Estate

Site 1, Ferry Road, Derrylaughan, Coalisland BT71 4QU

Building Site (with FPP) For Sale

£100,000

Print additional images & map (disable to save ink)

Photo 1 of Site 1, Ferry Road, Derrylaughan, Coalisland

Telephone:

028 8788 0080

View Online:

www.bairdrealestate.co.uk/1031428

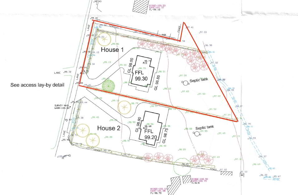
Baird Real Estate are delighted to present to the market this exceptional building site set on the highly sought-after Ferry Road in Derrylaughan, just a short drive from Coalisland. Extending to c.3.55 acres, this unique opportunity comprises a 0.75-acre site with full planning permission granted for a spacious 2,900sqft detached family home, offering an ideal blend of modern living and tranquil surroundings.

Key Information

Address Site 1, Ferry Road, Derrylaughan, Coalisland
Price Last listed at Offers over £100,000
Land type Building Site (with FPP)
Size 3.55 acres
Planning Full Planning Permission
Status Sale Agreed

Additional Information

Baird Real Estate are delighted to present to the market this exceptional building site set on the highly sought-after Ferry Road in Derrylaughan, just a short drive from Coalisland. Extending to c.3.55 acres, this unique opportunity comprises a 0.75-acre site with full planning permission granted for a spacious 2,900sqft detached family home, offering an ideal blend of modern living and tranquil surroundings.

The remainder of the land, approximately 2.8 acres, consists of mature forestry, providing a stunning natural backdrop and excellent privacy.

With utilities conveniently located nearby and direct road frontage, this is a perfect opportunity for those seeking to build their dream home in a peaceful rural setting while remaining within easy reach of local amenities, schools, and transport links.

Key Features:

  • Full planning permission for a 2,900 sq ft detached family residence
  • Circa 0.75-acre site with additional 2.8 acres of forestry
  • Highly desirable semi-rural location on Ferry Road
  • Easy access to Coalisland, surrounding towns and the M1 motorway
  • Services close to hand
  • Beautiful countryside views and natural surroundings

Planning reference number - LA09/2025/0042/F

Early viewing is highly recommended to fully appreciate the potential this site has to offer.

  • Baird Real Estate

    Baird Real Estate

    028 8788 0080

Photo Gallery

Photo 1 of Site 1, Ferry Road, Derrylaughan, Coalisland Photo 2 of Site 1, Ferry Road, Derrylaughan, Coalisland Photo 3 of Site 1, Ferry Road, Derrylaughan, Coalisland Photo 4 of Site 1, Ferry Road, Derrylaughan, Coalisland Photo 5 of Site 1, Ferry Road, Derrylaughan, Coalisland Photo 6 of Site 1, Ferry Road, Derrylaughan, Coalisland Photo 7 of Site 1, Ferry Road, Derrylaughan, Coalisland Photo 8 of Site 1, Ferry Road, Derrylaughan, Coalisland

Visit www.bairdrealestate.co.uk for further details.